福岡市南区平和 売り土地のお知らせ
福岡市南区平和にて売り土地が出ました。
どんな建物が建つのかイメージが湧くようにと、不動産会社さまよりご依頼いただき、ボリュームプランを作成しました。

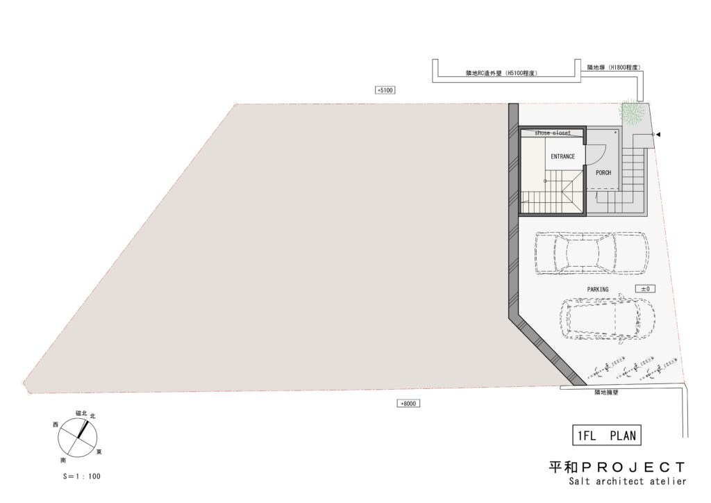
前面道路から敷地の奥にかけて、高低差のある土地です。
いかに擁壁工事を最小限に抑えることができるかが、全体の予算に大きく関係してきます。

そこで、設計地盤レベルを道路面から5mの高さに設定し、前面道路側のみ擁壁を作り、残り3方は擁壁工事が不要になる計画としています。



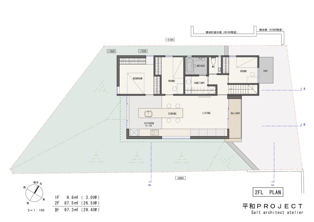
建物は、視線の抜けるLDKを南側に配置し、リビング・バルコニーからは高台ならではの市街地と空を眺める眺望を、
キッチン・ダイニングからは緑に覆われた斜面を望むことができます。
北側には個室や水回りを機能的に配置し、無駄のない設計にすることで面積を抑え、コストに配慮しています。
メインの生活スペースである2階レベルには屋外階段によるアプローチと、1階レベルに設けたエントランスホールからアクセスし、
街の喧騒との距離を保つ役割も担っています。


現在、こちらの土地は不動産情報サイト『ふれんず』にて掲載中です。価格や詳細な条件は、以下のリンクよりご確認ください。
ふれんず| (99719971)/福岡市南区平和1丁目/西鉄天神大牟田線西鉄平尾駅の物件詳細|売地(売土地)
このプランはあくまでたたきですので、変更プランの相談も可能です。お気軽にDMまたはHPよりお問い合わせください!
【福岡】福岡の女性建築家|建築における素材『バショ・ヒト・物・コト』の力を最大限引出すデザイン


